This section is from the book "American Plumbing Practice", by The Engineering Record. Also available from Amazon: Plumbing: A working manual of American plumbing practice.
(Published In 1895.)
The Railroad Men's Reading-room is a handsome four-story structure about 80 feet square on the ground, located on Madison Avenue, New York City, near the Grand Central Station, and by reason of its architectural treatment is prominent among the sightly edifices of that neighborhood. It was erected by Mr. William K. Vanderbilt, and is maintained as a kind of club-house wherein employees of the railways having their terminus at the Grand Central Station may pass their leisure time. It is administered with a view to the healthful recreation and mental and moral improvement of those making use of its facilities, and contains beside parlor and general meeting-rooms, offices, club and committee rooms, a library, a gymnasium, baths, bowling alleys, etc.

The plumbing embraces a main lavatory and toilet-room in the basement, bathrooms with tubs, shower and plunge baths and sinks, slopsinks, wash-trays, water-closets, urinals, and washbowls as required for convenience upon the upper floors. The soil and vent pipes are provided with cleanouts on dead ends and at principal angles, and are in lines branched from a 6-inch sewer pipe which extends under the basement floor to about the center of the building, and receives most of the discharge from rainwater leaders and floor strainers. One group of rainwater leaders discharges into an old outside masonry trapped cacth-basin, and the discharge from the plunge bath is received in a catch-basin whose contents are pumped out into the sewer.

PLUMBING IN THE RAILROAD MEN's READING-ROOM, NEW YORK CITY.

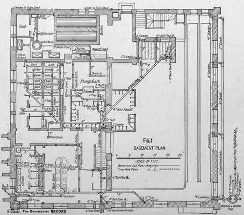
Figure 1 is a basement plan showing the arrangement of drain and trap vent pipes and the location of baths, lavatory, etc.
Figure 2 is a general vertical section and elevation showing five of the principal stacks of pipes.
Figures 3, 4, 5, 6, 7, and 8 are cross-sections showing views of portions of the lines and the fixtures at right angles to the plane of Fig. 2. Figure 3 is of line A at the third story. Fig. 4 of line B at the second and third stories, Fig. 5 of the basement water-closets.
Figure 6 shows how the vent and soil pipes of line D are run through the second, third, and fourth stories and are branched together in the mansard roof space. Figure 7 is a diagram of the basement urinals, and Fig. 8 shows the bends necessitated in line C to avoid obstructing windows and to go through the third-story partition.
Figure 9 shows the oval table, with the washbowls and handsome marble and plate-glass mirrors, in the basement.

PLUMBING IN THE RAILROAD MEN's READING-ROOM, NEW YORK CITY.
 
Continue to: